97 Arthur Phillip Drive North Richmond

Our first residential property has just been listed for sale

Can you believe it only took our team four months to complete!

From land acquisition to lawns mowed – our architecturally designed property truly is a sight to behold.
Quality from the front kerb and gutter to the back fence.

Completed home ready to move in!

Some of the features included:

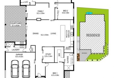
  • 4 bedroom, 2.5 bathrooms with floor to ceiling tiles, rumpus room & study
  • Gorgeous alfresco with BBQ and bar fridge
  • 900m wide gas appliances
  • Ducted air (2 zones) & vacuum
  • Video intercom and alarm system
  • Solar hot water
  • Ornate gas fireplace
See listing

 

Simpson Building Group

Phone: 02 4572 1033
ABN: 22 105 950 230
Licence Number: 191 555C